a holistic restoration, renovation, and expansion of a historic Brooklyn limestone for a growing family
Annie Barrett Adriel Mesznik Anastasia Yee Deo Deiparine Luke Warren
Elegant details and careful restoration breathe new life into a generously-proportioned townhouse.
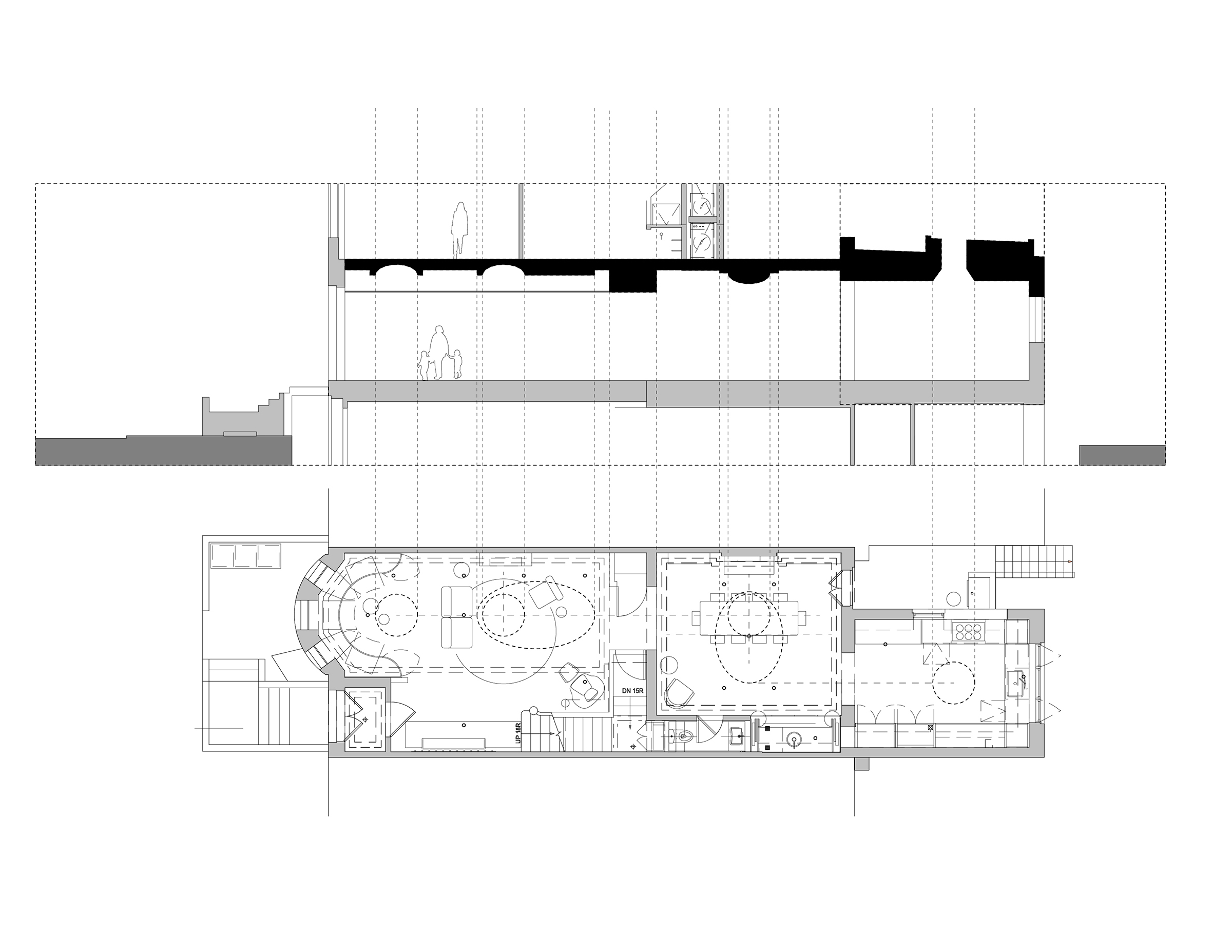
A central stair guides light, movement, and the sounds of footsteps of small children through the home.
A quiet, lush palette of hues brings distinction to each space, from a home office in the lower level all the way up to the kids’ bedrooms on the fourth floor.
A new circular skylight in the kitchen sits in dialogue with historic ceiling details in adjacent parlor-level rooms.