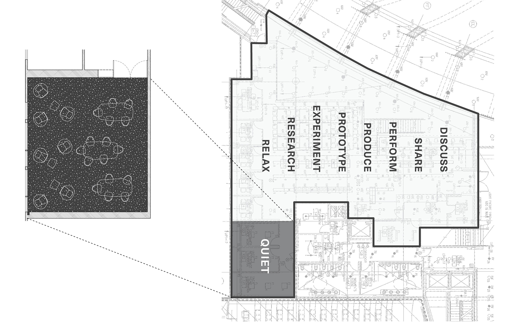
a quiet reading room to enable a boisterous research culture in the Olin College of Engineering Library
Annie Barrett
We collaborated with the Olin College of Engineering on renovations to the campus library as a first step in implementing our larger strategic plan.
Through engagement with leadership, faculty, and students, the need emerged for a quiet space to balance the boisterous research culture in the rest of the library.
We designed a visually engaging, acoustically muted reading room in an underutilized portion of the library...
...using a custom system of interlocking felt shapes with varied colors and textures.